Künzell:
3-Familienhaus auf sehr großem Grundstück in ruhiger Lage ++ mit Möglichkeit zur Bebauung ++
Objekt-Nr.: 222020#Jpfhb

Luftbild - Umkreis

Vorderansicht

Luftbild - Vorderansicht

Luftbild - Vorderansicht

Luftbild - Seitenansicht

Luftbild - Rückansicht

Luftbild Umgebung

Zufahrt

Küche EG

Bad EG

Wohnzimmer EG

Treppenhaus

Treppenhaus

Wohnbereich DG

Schlafzimmer DG

Auszeichnung 2021

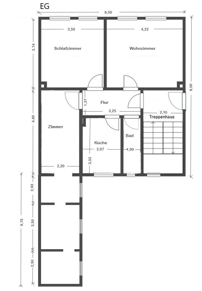
Erdgeschoss

Obergeschoss

Dachgeschoss



















Preis:
840.000 €
Wohnfläche ca.:
255 m²
Grundstück ca.:
1.400 m²
Zimmeranzahl:
12
Dieses auf einem über 1300 m² großen Areal gelegene Mehrfamilienhaus liegt verkehrsgünstig in Fuldas Stadtrandgebiet. Da das Grundstück recht groß ist, wäre eine Teilung durchaus denkbar. Auch ein An- bzw. Neubau wäre nach Auskunft vom Bauamt möglich.
Nur über einen Privatweg gelangen Sie auf das schöne große Grundstück.
Das im klassisch-modernen Stil gebaute 2-geschossige Haus verfügt über eine große einladende Einfahrt mit viel Platz für Parkmöglichkeiten, welche bei den beiden Garagen endet, die direkt neben dem Hauseingang errichtet wurden.
Das voll unterkellerte Haus hat drei Wohneinheiten und ist zur Zeit komplett vermietet.…
Mit einer Gesamtwohnfläche von ca. 255 m², aufgeteilt in 90 m² im EG sowie OG und 75 m² im DG, geben die drei Wohnungen mit jeweils vier Zimmern, Küche und Bad genug Raum zur Entfaltung.
Jede Wohnung ist mit einem Balkon ausgestattet. Die Erdgeschosswohnung hat zusätzlich noch eine Terrasse und im OG gibt es noch einen zweiten kleineren Balkon.
Vom überdachten Eingangsbereich kommt man in das helle freundliche Treppenhaus, bestehend aus hellen Betonwerksteinstufen und einem sicheren Stahlgeländer.
Die Wohnungseingangstüren haben, wie es im Stil der 60iger Jahre üblich war, große Glasausschnitte für mehr Licht und Helligkeit im großen übersichtlichen Flur.
Alle Wohnungen verfügen über ein Tageslichtbad. Im EG und OG sind die Bäder mit Wanne und Dusche ausgestattet und auch im DG kann man ein entspannendes Bad nehmen. Nur in der Obergeschosswohnung wurde das WC separiert.
Ein mit mehreren Obstbäumen gestalteter Garten lädt zum verweilen und spielen ein.
Haustyp: Mehrfamilienhaus
Etagenanzahl: 2
Provisionspflichtig: ja
Provision: 3,57 (inkl. MwSt.)
Bad: Dusche, Wanne, Fenster
Anzahl Schlafzimmer: 9
Anzahl Badezimmer: 3
Balkon: 4
Terrasse: 1
Keller: voll unterkellert
vermietet: ja
Anzahl der Parkflächen: 4
Anzahl der Parkflächen: 4 x Außenstellplatz; 2 x Garage
Letzte Modernisierung/ Sanierung: 1986
Baujahr: 1964
Mieteinnahmen p.a.: 30.000 €
Bodenbelag: Fliesen, Parkett, Laminat
Die Provision errechnet sich aus dem beurkundeten Kaufpreis. Dieses Exposé ist eine Vorinformation, als Rechtsgrundlage gilt allein der notariell abgeschlossene Kaufvertrag.
Wir weisen auf unsere Allgemeinen Geschäftsbedingungen hin. Durch weitere Inanspruchnahme unserer Leistungen erklären Sie die Kenntnis und Ihr Einverständnis.
Das könnte Ihnen auch gefallen






































































































