Peine:
 Handwerker aufgepasst! - Zentral gelegenes Mehrfamilienhaus mit Ausbaupotential 					
					
              Objekt-Nr.: 242050#Jpfhb          
				
Außenansicht Südwest

Aussenansicht Südost

Aussenansicht Südwest

Aussenansicht Nordwest

Drohnenbild Süd

Drohnenbild Südwest

Drohnenbild Südost

Drohnenbild Nordost

Garten

Garten

Außenansicht Eingangsbereich

EG - Wohnzimmer

EG - Schlafzimmer

EG - Küche

EG - Flur Richtung Abstellraum

EG - Badezimmer

Treppenhaus OG

OG - Wohnzimmer

OG - Schlafzimmer

OG - Küche

OG - Badezimmer

Treppenhaus DG

DG - Wohnzimmer

DG - Küche

DG - Badezimmer

Grundriss KG

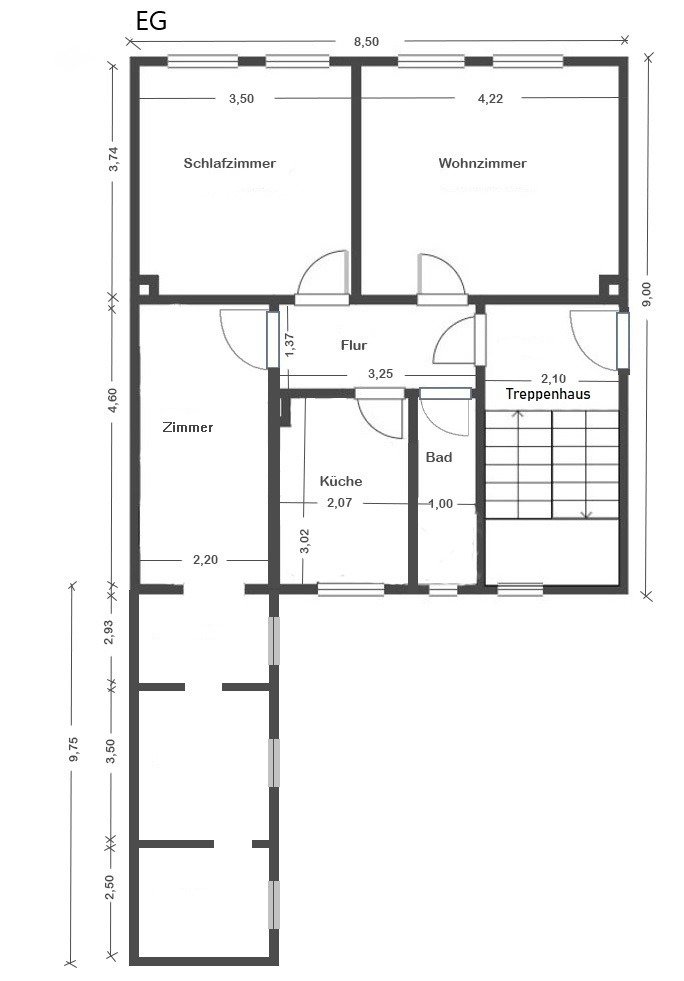
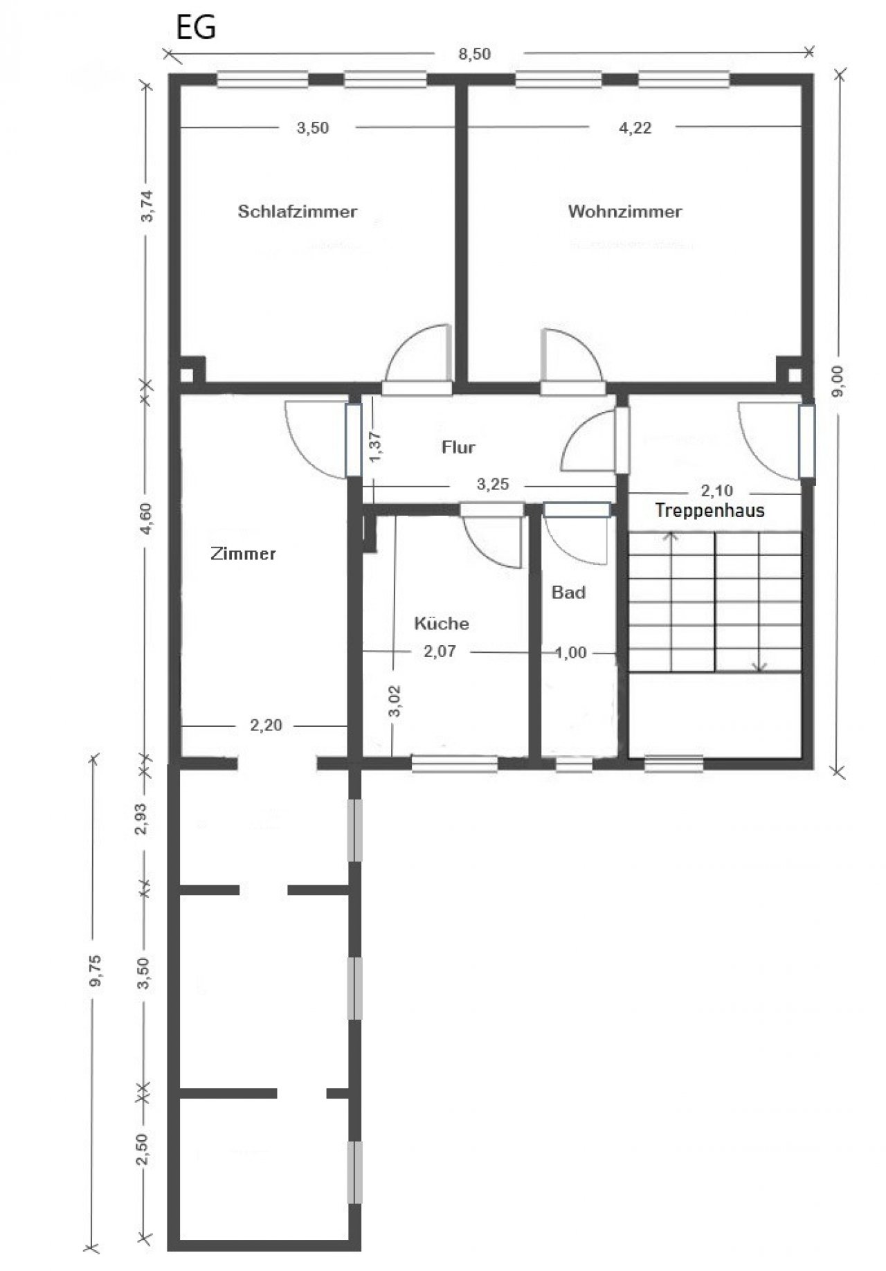
Grundriss EG mit Anbau

Grundriss OG

Grundriss DG





























Preis:
 170.000 €
Wohnfläche ca.:
 148 m²
Grundstück ca.:
 241 m²
Zimmeranzahl:
 7
       Bei dieser Immobilie handelt es sich um eine Doppelhaushälfte, die im späten 19. Jahrhundert erbaut wurde und heute in drei separate Wohneinheiten auf drei Etagen mit insgesamt ca. 148 m² Gesamtwohnfläche verteilt ist. 
Das vollständig unterkellerte Gebäude besticht durch seine historische Ausstrahlung und liegt in einer zentrumsnahen Gegend von Peine mit hervorragender Anbindung an das Stadtzentrum. Die Wohnungen sind gut geschnitten und bieten sowohl für Kapitalanleger als auch für Familien oder Mehrgenerationenhaushalte vielseitige Nutzungsmöglichkeiten.
Das Grundstück umfasst eine Fläche von 241 m².…
    
       Trotz der zentrumsnahen Lage bietet es einen praktischen, überschaubaren Gartenbereich, der eine pflegeleichte Außenanlage ermöglicht und gleichzeitig Spielraum für individuelle Gestaltung lässt.
Bei vollständiger Vermietung und einer Mietanpassung liegt die erzielbare Jahresnettomiete bei etwa 12.500 Euro.
Der Zugang zu den Wohnungen erfolgt über den Eingang an der Westseite des Hauses, von dort gelangt man ins Treppenhaus mit Verbindung zu den Kellerräumen.
Die Erdgeschosswohnung, aktuell vom Eigentümer genutzt, stellt mit 53 m² Wohnfläche und rund 20 m² zusätzlich beheizter Nutzfläche im Anbau die größte Wohneinheit des Hauses dar. Sie verfügt über insgesamt drei Zimmer, eine Küche und ein Badezimmer.
Die Wohnung im Obergeschoss bietet auf etwa 52 m² eine gut durchdachte Raumaufteilung, bestehend aus zwei Zimmern, einer Küche, einer Diele, einem Badezimmer und einem praktischen Abstellraum. 
Vom Eingangsbereich führt der Flur direkt zu den einzelnen Räumen: Auf der rechten Seite befinden sich das großzügige Wohnzimmer und das gemütliche Schlafzimmer, am Ende des Flurs die geräumige Küche. Linkerhand liegt das helle Tageslichtbad, das durch seine Nähe zum Schlafbereich besonders praktisch ist, sowie der angrenzende Abstellraum, der zusätzlichen Stauraum für alltägliche Dinge bietet.
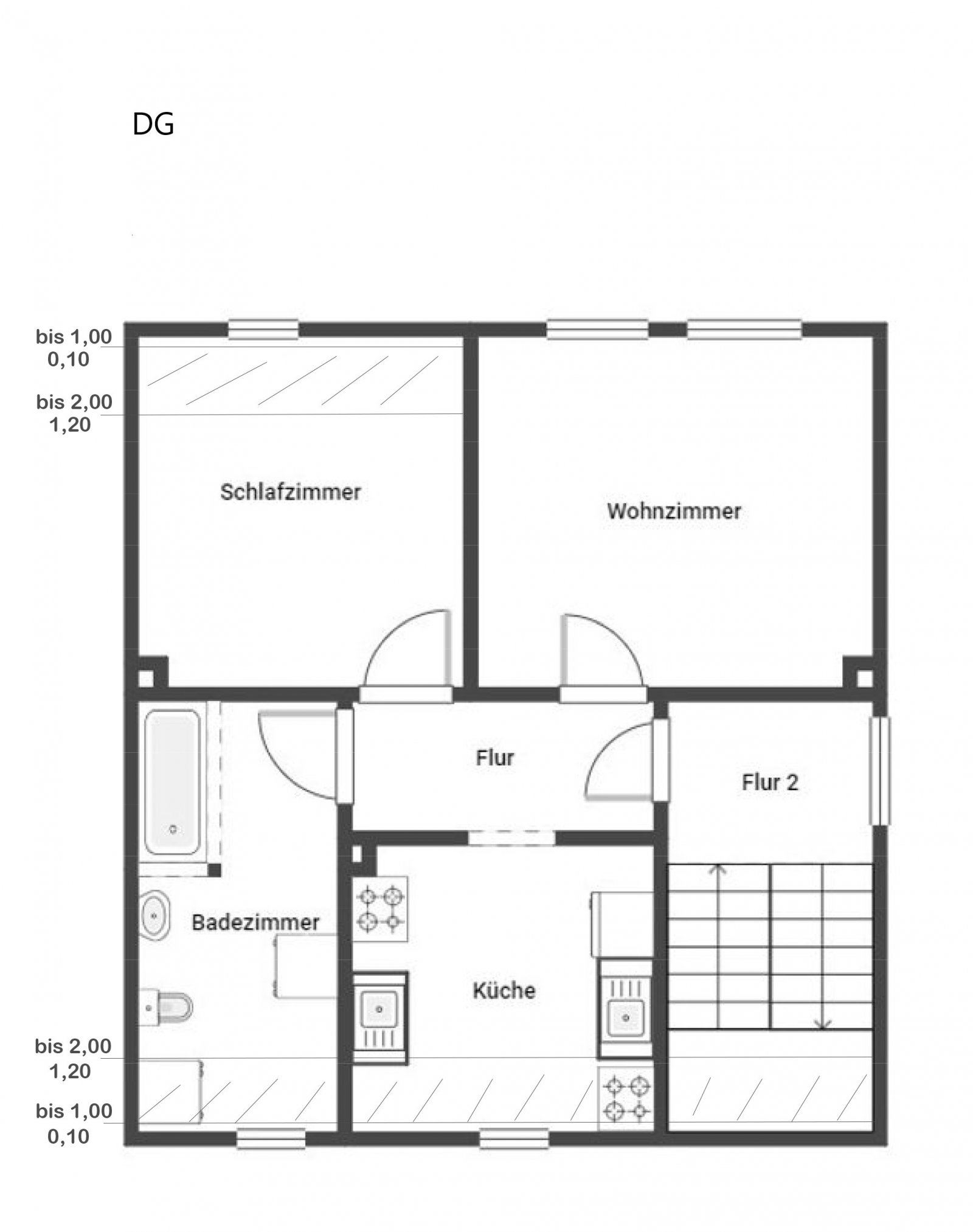
Im Dachgeschoss befindet sich eine Zweizimmerwohnung mit ca. 43 m². Sie weist eine ähnliche Bauweise wie die Wohnung im Obergeschoss auf, mit der Ausnahme, dass Badezimmer und Küche ihre Plätze getauscht haben. Das Bad ist zudem mit einer Badewanne anstelle einer Dusche ausgestattet.
Diese Immobilie bietet vielseitige Nutzungsmöglichkeiten und großes Potenzial – sei es als rentable Kapitalanlage oder als Mehrfamilienhaus für individuelle Wohnkonzepte. Mit der Möglichkeit zur persönlichen Gestaltung stellt sie eine attraktive Gelegenheit für langfristige Investitionen dar.
Wir laden Sie ein, diese Investitionsmöglichkeit näher zu betrachten und sich von ihrem Potenzial zu überzeugen.
    
Haustyp: Mehrfamilienhaus
Etagenanzahl: 3
Provisionspflichtig: ja
Provision: 3,57% (inkl. MwSt.)
Nutzfläche ca.: 20 m²
Küche: Einbauküche
Bad: Dusche, Wanne, Fenster
Anzahl Schlafzimmer: 3
Anzahl Badezimmer: 3
Keller: voll unterkellert
vermietet: ja
Letzte Modernisierung/ Sanierung: 2016
Baujahr: 1896
Bodenbelag: Fliesen, Teppichboden, Laminat
Heizung: Etagenheizung
Befeuerungsart: Gas
Energieausweistyp: Energieausweis liegt zur Besichtigung vor
Die Provision errechnet sich aus dem beurkundeten Kaufpreis. Dieses Exposé ist eine Vorinformation, als Rechtsgrundlage gilt allein der notariell abgeschlossene Kaufvertrag.
Wir weisen auf unsere allgemeinen Geschäftsbedingungen hin. Durch weitere Inanspruchnahme unserer Leistungen erklären Sie die Kenntnis und Ihr Einverständnis.
Das könnte Ihnen auch gefallen
 
							 
		
		            
         
           
          


































































































