Quakenbrück:
Großzügiges Wohnhaus mit zwei Einheiten und ehemaliger Gaststätte in ruhiger Lage
Objekt-Nr.: 251060#Jpfhb

DJI_0362-3 - verkauft

Straßenansicht

Seitenansicht - Eingang ehem. Gaststätte

Garage und Einfahrt

Drohnenbild

Drohnenbild

Garten und Rückseite Saal

Garten

Gang zwischen Garage und Haus

Terrasse

Diele und Treppenhaus EG

Schlafzimmer EG

Bad EG

Wohnzimmer-Küche DG

Wohnbereich - Blick ins das Bad, DG

Wohnbereich DG

Schlafzimmer DG

Bad DG

Bad DG

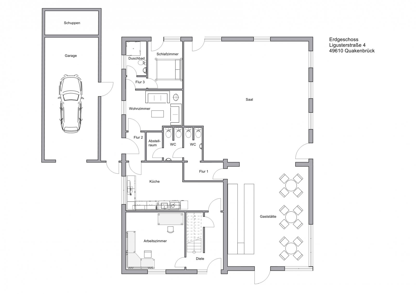
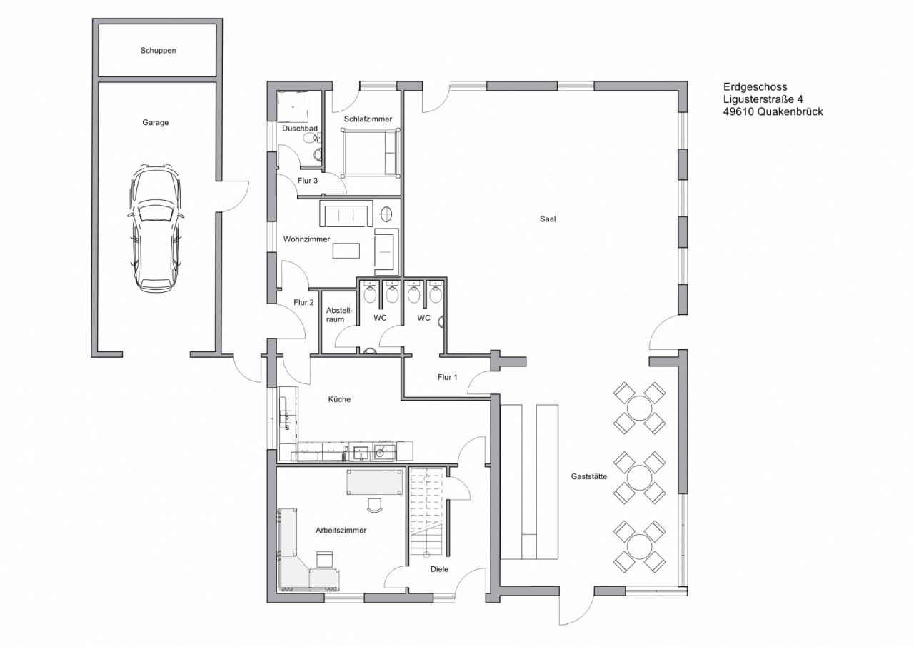
Erdgeschoss - aktueller Stand

Dachgeschoss - aktueller Stand





















Preis:
175.000 €
Wohnfläche ca.:
143 m²
Grundstück ca.:
710 m²
Zimmeranzahl:
7
Großzügiges Wohnhaus mit zwei Einheiten, Hof, Garage, Garten und Ausbaupotenzial
Dieses Wohnhaus mit ehemaliger Gaststätte präsentiert sich als großzügiges und solide errichtetes Gebäude mit Verblendmauerwerk aus roten Ziegeln . Das zweigeschossige Haupthaus mit Satteldach wird durch einen rückwärtigen, eingeschossigen Anbau ergänzt, der die Wohn- und Nutzflächen sinnvoll erweitert und dem Objekt einen vielseitigen Charakter verleiht.
Aktuell ist das Haus in zwei Wohneinheiten gegliedert: eine Wohnung im Erdgeschoss mit ca. 66 m² Wohnfläche sowie eine weitere Einheit im Dachgeschoss mit ca. 77 m². Die Aufteilung ermöglicht ein komfortables Mehrgenerationenwohnen mit getrennten Wohneinheiten.…
Straßenseitig überzeugt das Haus durch ein gepflegtes Erscheinungsbild mit klaren Linien, modernisierten Fenstern und einem hell gestalteten Eingangsbereich. Ein Erker mit großflächigen Fenstern sorgt im Inneren für eine angenehme Belichtung. Die großzügig gepflasterte Hoffläche bietet komfortable Parkmöglichkeiten direkt am Haus.
Ehemalige Gaststätte mit vielseitigen Nutzungsperspektiven
Im rechten Bereich des Erdgeschosses befinden sich die Räumlichkeiten der ehemaligen Gaststätte.
Mit ihrem separaten Eingang, dem großzügigen Schnitt und einem weitläufigen Saal bieten sie die ideale Voraussetzung für den Ausbau zu einer weitläufigen, repräsentativen Wohnung. Ob modernes Loft, stilvolles Homeoffice oder eine Kombination aus Wohnen und Arbeiten – hier eröffnen sich vielfältige Gestaltungsmöglichkeiten
Erdgeschosswohnung mit Gartenanbindung
Die links gelegene 3-Zimmer-Wohnung im Erdgeschoss verfügt über einen eigenen Eingang und ist gut geeignet für Singles, Paare oder als barrierearme Wohneinheit. Eine freundliche Diele erschließt die Räume, von der aus ein separates Arbeitszimmer erreichbar ist – gut geeignet als Homeoffice oder Rückzugsraum.
Über die Diele gelangt man sowohl zur Treppe ins Dachgeschoss als auch in den Keller. Am Ende öffnet sich der Bereich zur geräumigen Küche, die in den Flur des Nebeneingangs übergeht. Dieser ermöglicht einen direkten Zugang zur angrenzenden Garage und sorgt für kurze Wege im Alltag.
Vom zentralen Flur aus sind das Wohnzimmer sowie der hintere Bereich der Wohnung mit Duschbad und Schlafzimmer erreichbar. Das Schlafzimmer bietet einen direkten Zugang zum Garten und zu einer geschützten Terrasse – ein privater Außenbereich für entspannte Stunden im Freien.
Familienfreundliche Dachgeschosswohnung
Über die zentrale Treppe erreicht man die 4-Zimmer-Wohnung im Dachgeschoss. Der funktionale Grundriss eignet sich besonders für Familien. Ein zentraler Flur verbindet alle Räume miteinander: Schlafzimmer, der helle Wohn- und Essbereich mit Küche sowie das Badezimmer sind von hier aus bequem zugänglich.
Außenbereiche und Nebengebäude
Abgerundet wird das Angebot durch eine geräumige Garage mit zusätzlichem Stauraum, einen praktischen Schuppen für Gartengeräte und Fahrräder sowie eine überdachte Terrasse mit gemauertem Kamin. Dieser geschützte Bereich bietet Raum für gesellige Stunden und erweitert den Wohnkomfort deutlich.
Diese Immobilie präsentiert sich als vielseitig nutzbares Wohnhaus mit großzügigen Außenflächen und attraktiven Gestaltungsmöglichkeiten. Sie eignet sich sowohl als Mehrgenerationenhaus, als Familienimmobilie als auch zur Verbindung von Wohnen und Arbeiten.
Haustyp: Zweifamilienhaus
Etagenanzahl: 1
Provisionspflichtig: ja
Provision: 3,57 % (inkl. MwSt.)
Nutzfläche ca.: 122 m²
Bad: Dusche, Wanne, Fenster
Anzahl Schlafzimmer: 4
Anzahl Badezimmer: 2
Terrasse: 1
Keller: voll unterkellert
Anzahl der Parkflächen: 6
Anzahl der Parkflächen: 6 x Außenstellplatz; 1 x Garage
Baujahr: 1950
Bodenbelag: Fliesen, Laminat
Befeuerungsart: Gas
Energieausweistyp: Energieausweis liegt zur Besichtigung vor
Die Provision errechnet sich aus dem beurkundeten Kaufpreis.
Dieses Exposé ist eine Vorinformation, als Rechtsgrundlage gilt allein der notariell abgeschlossene Kaufvertrag.
Wir weisen ausdrücklich auf unsere Allgemeinen Geschäftsbedingungen (AGB) hin, die die Grundlage für die Inanspruchnahme unserer Leistungen bilden. Mit der weiteren Nutzung unserer Angebote erklären Sie, dass Sie von unseren AGB Kenntnis genommen haben und diesen zustimmen.
Das könnte Ihnen auch gefallen




































































































